Biệt thự 2 tầng hiện đại mặt tiền 8m
Vốn đã được yêu thích từ lâu nhờ vào sự sang trọng, ngày nay càng có nhiều gia chủ lựa chọn loại hình nhà ở biệt thự 2 tầng hiện đại. Đúng như tên gọi của nó, biệt thự mang phong cách hiện đại cho phép chủ đầu tư có nhiều sự lựa chọn hơn, kiến trúc sư có nhiều sự sáng tạo, linh hoạt trong cách thiết kế, bố trí để hợp với mong muốn của gia chủ.
Thông tin dự án biệt thự 2 tầng hiện đại tại Quảng Bình
- Biệt thự 2 tầng diện tích 120m2 tại Quảng Bình.
- Phong cách thiết kế: Hiện đại.
- Địa chỉ: P.Đồng Hải -TP.Đồng Hới – Tỉnh Quảng Bình
- Số tầng: 2 tầng.
- Diện tích: 120m2/sàn.
- Công năng: 1 khách, 1 bếp, 3 vệ sinh, 3 phòng ngủ, 1 phòng thờ, 1 sân phơi.
- Tổng mức đầu tư: 1,4 tỷ bao gồm nội thất cơ bản.
- Năm xây dựng – hoàn thành: 2023.

Với diện tích sàn như thế này, thực sự rất lý tưởng để xây dựng biệt thự 2 tầng. Số lượng phòng ngủ vừa đủ, không cần quá nhiều, phần không gian còn lại dành cho các nhu cầu khác của các thành viên trong gia đình.
Kiến trúc Biệt thự 2 tầng hiện đại tại Quảng Bình

Biệt thự mang phong cách hiện đại có nhiều ưu điểm hấp dẫn. Kiến trúc đơn giản nhưng không kém phần sang trọng. Những ngôi nhà này thường thiết kế đơn giản, nhẹ nhàng, khỏe khoắn và thanh lịch.
Sử dụng vật liệu hiện đại như kính và thép, tạo nên không gian mở và ánh sáng tự nhiên.

Kiến trúc của phần mái cũng không hề bó buộc vào một kiểu nhất định. Như ở dự án này, kiến trúc sư đã tạo ra hai phương án khác nhau. Một là mái Nhật, thể hiện phần nào đó sự kết hợp giữa kiến trúc Á Đông và hiện đại.

Trong khi đó, phương án mái bằng giúp ngôi nhà trở nên khỏe khắn, năng động hơn. Tường chắn ở phía bên ngoài hạn chế được rất nhiều nắng vào đầu giờ chiều nhưng vẫn không làm mất đi vẻ đẹp của ngôi nhà.

Sử dụng của kính để tận dụng không gian mở, tạo cảm giác thoải mái và đẳng cấp, kết hợp với lan can kính nhẹ nhàng bao quanh ban công là một nét thú vị.

Diện tích ban công tầng 2 cũng tương đối rộng, một địa điểm lý tưởng để thưởng thức trà, ngắm cảnh vào buổi tối.
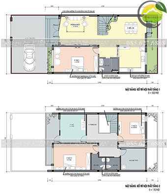
Công năng biệt thự 2 tầng hiện đại mặt tiền 8m


Với diện tích mặt sàn 120m/sàn thì rõ ràng, không gian từng phòng tương đối rộng rãi và thoải mái. Tất cả đều bố trí theo phong thủy, hướng tốt hợp với tuổi của chủ nhà.
Không gian tầng 1 bao gồm phòng khách, một phòng ngủ, bếp + phòng ăn, cùng một nhà vệ sinh. Cuối nhà là khoảng sân nhỏ để làm tiểu cảnh. Việc trồng cây sau nhà bếp giúp cho căn phòng trở nên thoáng hơn, cải thiện tính thẩm mỹ cũng như tinh thần.
Tầng hai tập trung vào việc nghỉ ngơi của các thành viên gồm 2 phòng ngủ, 1 phòng thờ và 1 sân phơi. Sân phơi và phòng thờ không nằm đối diện nên sẽ không ảnh hưởng theo phong thủy.
Thông tin liên hệ
Kiến Trúc Cảnh Quan 235 với 7 năm kinh nghiệm trong lĩnh vực thiết kế kiến trúc- cảnh quan, luôn sẵn sàng mang đến những công trình chất lượng với thái độ làm việc nghiêm túc, tỉ mỉ, trân trọng từng công trình. Chúng tôi luôn nỗ lực để mang đến cho khách hàng những trải nghiệm tốt nhất, đảm bảo tiến độ khi thiết kế và thi công.
Quý khách hàng cần hỗ trợ tư vấn thiết kế và thi công, hãy liên hệ ngay với chúng tôi qua Hotline: 085.627.6868.
